4-к, Игоря Киртбая, 28/1 Показать на карте
Сургут
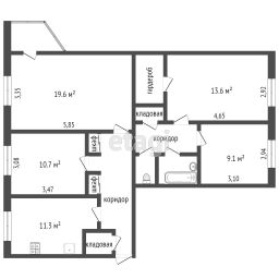
Просторная четырехкомнатная квартира с предчистовой отделкой в ЖК ''Новин'' на 5 этаже. Общая площадь: 117.34 кв.м., жилая: 56.1 кв.м., площадь просторной кухни-гостиной: 20.1 кв.м. Квартира угловая, идеально подойдет любителям тишины и панорамных видов. В квартире три лоджии, два совмещенных санузла. Высота потолков 2.74 м. Дом монолитный, многоподъездный, переменной этажности, от 8 до 17 этажей. Квартира находится в 3-й секции высотой 9 этажей в корпусе 5. На этаже 7 квартир. В подъезде 1 грузовой лифт. Строительство завершено, дом сдан в 1 квартале 2025 года. Оформление сделки по договору купли-продажи. Четырехкомнатная квартира в квартале ''Новин''. Особенности планировки: лоджия, мастер-спальня, предчистовая отделка, разнесённые спальни. квартиры в нашей базе: НС-ГП5-3-131. Квартал ''Новин'' расположен на западе Сургута в районе с хорошо развитой инфраструктурой. Рядом — парк ''Кедровый Лог'', детские сады, поликлиника, продуктовые магазины и торговые центры. До центра города — 20 минут на автомобиле. Пять домов уже заселены. Ещё три находятся на этапе возведения. Квартал находится в западной части Сургута на пересечении Югорского тракта и улицы Игоря Киртбая. Можно быстро добраться до любой точки города по Югорскому тракту. В районе уже сформированная инфраструктура. Рядом расположены крупные торговые центры, три детских сада, поликлиника, парк и спортивная база. На первых этажах квартала спроектированы коммерческие помещения под повседневные сервисы для жителей: магазины, кафе, аптеки и другие полезные функции. Проектом развития территории предусмотрено строительство детского сада и общеобразовательной школы. Во дворах предусмотрены сценарии для разных категорий жителей, в том числе и площадки для тихого отдыха с фонтаном и арт объектом. Детская площадка раскрывает игровой потенциал территории за счёт разных возможных типов взаимодействий, среди которых присутствуют: контакт с природой, смена уровня игры и контролируемый риск, сотрудничество и игра в команде, а также спокойный сценарий с качелями. Между домами второй очереди мы спроектировали общественное пространство. Здесь также расположатся спортивные и игровые площадки, велопарковки и площадь событий. Главной точкой притяжения станет фонтан.
117 м2
5 / 9 этаж
Монолит
- Показать контакты
- Добавить в избранное
117 м2
5 / 9 этаж
Монолит
15 300 000
130 390 /м2
Новостройка,
дом сдан
дом сдан
