Если цена в объявлении изменится, мы сразу сообщим вам об этом на электронную почту.
Нажимая «Подписаться», вы соглашаетесь с правилами.
продам 2-к, Мичурина, 214 100 000 ₽
16 дек
Дата публикации объявления
Обн. 15 мая
Дата обновления объявления
9
Количество просмотров (+ просмотры за сегодня)
82 329 ₽/м²
Чистая продажа
Термин "Чистая продажа" означает, что в квартире никто не прописан или
есть куда выписаться и вывезти вещи. Это лучший вариант для покупателя.
Вероятность срыва сделки минимальна.
К продаже предлагается светлая уютная 2-кoмнатнaя квартира в кирпичном доме 2020 года постройки.
Квартира подходит под программу ''Семейная ипотека'' на вторичном рынке на льготных условиях по ставке до 6% годовых.
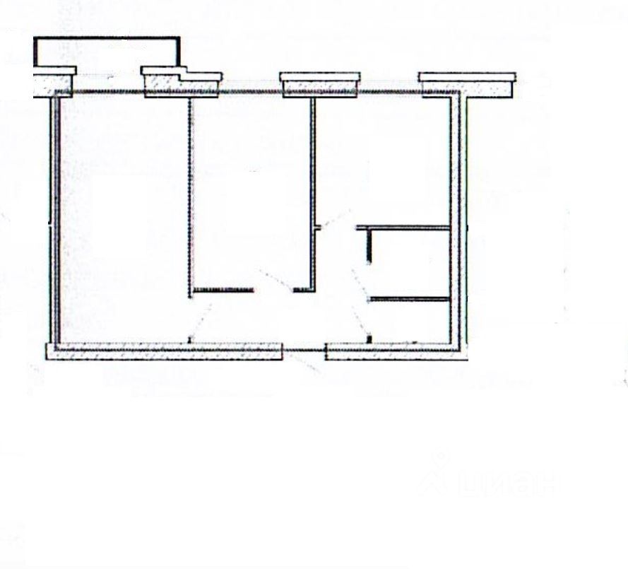
Жилые комнаты изолированные (17,1 м² + 12,1 м²), просторная кухня (9,3 м²), раздельный санузел, установлены пластиковые окна, застекленный окнами ПВХ балкон, имеются счетчики на холодное, горячее водоснабжение и электроэнергию.
К продаже предлагается светлая уютная 2-кoмнатнaя квартира в кирпичном доме 2020 года постройки.
Квартира подходит под программу ''Семейная ипотека'' на вторичном рынке на льготных условиях по ставке до 6% годовых.
Жилые комнаты изолированные (17,1 м² + 12,1 м²), просторная кухня (9,3 м²), раздельный санузел, установлены пластиковые окна, застекленный окнами ПВХ балкон, имеются счетчики на холодное, горячее водоснабжение и электроэнергию.
В квартире сделан косметический ремонт:
- пол: в комнатах, кухне, коридоре застелен линолеумом, в санузлах выложен кафельной плиткой, - стены: в комнате, кухне, коридоре оклеены обоями, в гостиной окрашены краской, на кухне оштукатурены, в санузлах комбинированная облицовка (кафельная плитка + побелка), - потолки: везде натяжные.
В КВАРТИРЕ ЧАСТИЧНО ОСТАЮТСЯ МЕБЕЛЬ И ТЕХНИКА. Коммунальные платежи: летом - до 3000 рублей, зимой - до 6000 рублей.
Во дворе: автопарковка с достаточным количеством парковочных мест, детская игровая и спортивная площадки.
Дом расположен в районе с развитой инфраструктурой: детский сад, магазины, ТРЦ Столичный Плаза, ПВЗ, аптеки, конно-спортивный клуб Аллюр, остановки общественного транспорта - все в шаговой доступности.
Один взрослый собственник.
Оказываем профессиональное содействие в получении ипотеки.