В избранном
В избранное
Пожаловаться
Напечатать
Следить за ценой

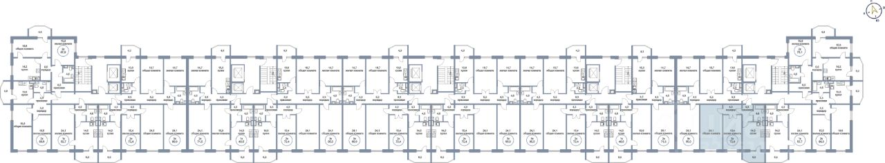
продам 2-к, Югорский тракт, 50/38 030 000 ₽

7 окт
Обн. сегодня
110 912 ₽/м²
  • Чистая продажа