В избранном
В избранное
Пожаловаться
Напечатать
Следить за ценой

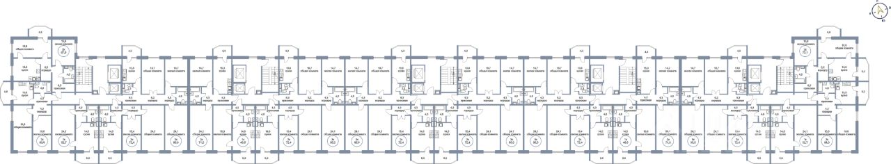
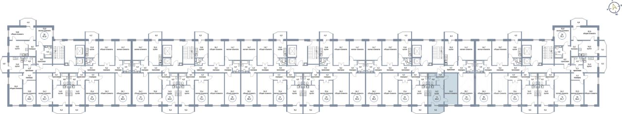
продам 1-к, Югорский тракт, 50/36 625 000 ₽

7 окт
Обн. 11 мая
136 598 ₽/м²
  • Чистая продажа