В избранном
В избранное
Пожаловаться
Напечатать
Следить за ценой

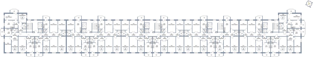
продам 3-к, Югорский тракт, 50/38 955 000 ₽

7 окт
Обн. сегодня
94 263 ₽/м²
  • Чистая продажа