Термин "Чистая продажа" означает, что в квартире никто не прописан или
есть куда выписаться и вывезти вещи. Это лучший вариант для покупателя.
Вероятность срыва сделки минимальна.
Квартира
Общая площадь149,45 м2
Жилая площадь65 м2
Кухня35 м2
Количество балконов1
Тип собственностисвидетельство о праве собственности
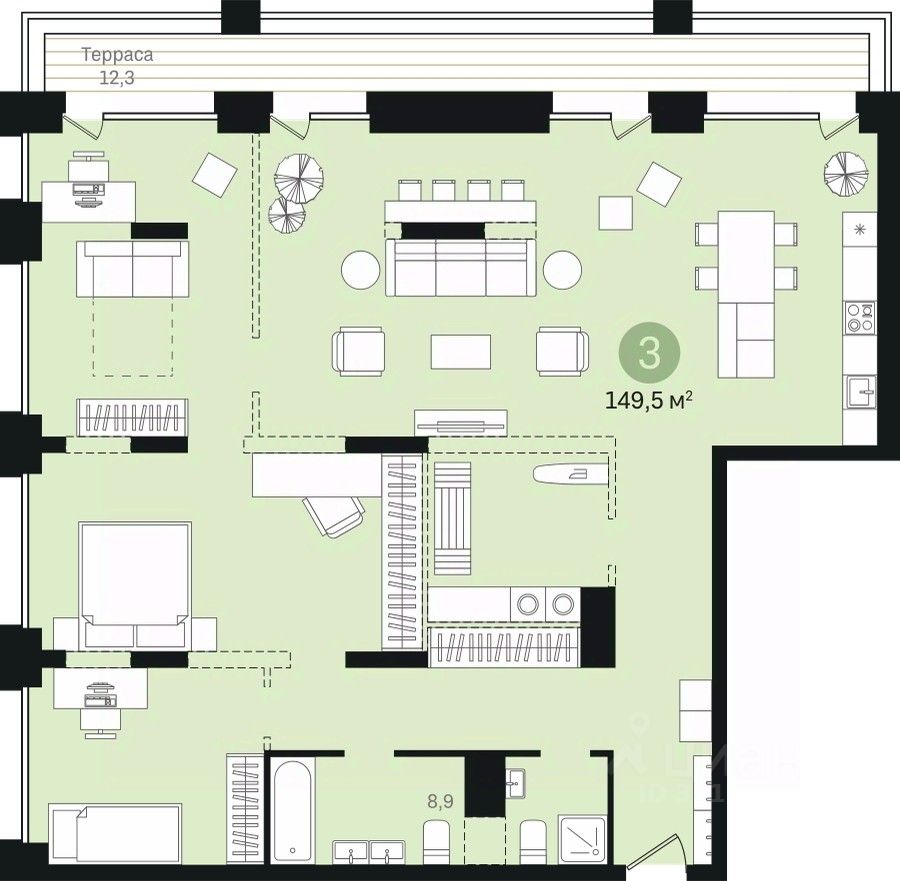
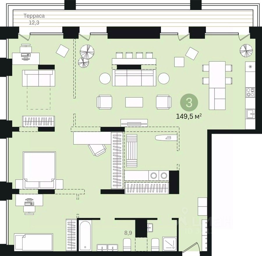
Просторная трехкомнатная квартира с предчистовой отделкой в ЖК ''Гудзон'' на 8 этаже. Общая площадь: 149.45 кв.м., жилая: 65 кв.м., площадь просторной кухни-гостиной: 35 кв.м. Угловая квартира, окна oбecпeчивaют paвнoмepнoe ocвeщeниe в тeчeниe дня. В квартире один балкон, два совмещенных санузла. Терраса площадью 12.3 кв.м. представляет собой роскошную зону отдыха для проведение вечеров в кругу семьи и друзей или организация вечеринок. Высота потолков 2.72 м.
Дом монолитный, многоподъездный, переменной этажности, от 2 до 17 этажей. Квартира находится в 3-й секции высотой 17 этажей в корпусе 1. На этаже 6 квартир. В подъезде 1 пассажирский и 1 грузовой лифт. Строительство завершено, дом сдан в 3 квартале 2023 года. Оформление сделки по договору купли-продажи.
Просторная трехкомнатная квартира с предчистовой отделкой в ЖК ''Гудзон'' на 8 этаже. Общая площадь: 149.45 кв.м., жилая: 65 кв.м., площадь просторной кухни-гостиной: 35 кв.м. Угловая квартира, окна oбecпeчивaют paвнoмepнoe ocвeщeниe в тeчeниe дня. В квартире один балкон, два совмещенных санузла. Терраса площадью 12.3 кв.м. представляет собой роскошную зону отдыха для проведение вечеров в кругу семьи и друзей или организация вечеринок. Высота потолков 2.72 м.
Дом монолитный, многоподъездный, переменной этажности, от 2 до 17 этажей. Квартира находится в 3-й секции высотой 17 этажей в корпусе 1. На этаже 6 квартир. В подъезде 1 пассажирский и 1 грузовой лифт. Строительство завершено, дом сдан в 3 квартале 2023 года. Оформление сделки по договору купли-продажи.
Квартира с кухней-гостиной и тремя спальнями в Гудзоне. Особенности планировки: второй санузел, гардеробная, окна в пол, свободная планировка, терраса. квартиры в нашей базе: ПР-ГП1-3-077.
''Гудзон'' устроен как замкнутый квартал из разноэтажных секций по периметру с приватным двором и общественным пространством. Во дворе нет машин и посторонних людей. Высотность здания от 3 до 17 этажей делает двор светлым и обеспечивает нужную инсоляцию квартир. Рядом с домом расположена большая детская площадка для жителей.
Проект находится в непосредственной близости от центральной части города на пересечении Пролетарского проспекта и улицы Университетская. Можно добраться до любой точки города. В районе уже сформирована инфраструктура. В шаговой доступности расположены школа, детские сады, спортивные комплексы, парк и торговые центры. На первых этажах квартала спроектированы коммерческие помещения под повседневные сервисы для жителей: магазины, кафе и рестораны, аптеки и другие полезные функции. Проектом развития территории предусмотрен общественный сквер в центре района.
В проекте выражена идея интровертности здания: стены дома устроены вокруг внутреннего двора, который находится в центре композиции. Также здесь расположены две пешеходные арки, через которые осуществляется сквозной доступ во двор с улицы и главный вход в здание. Двор носит полуприватный характер и становится камерным лобби для жителей и гостей. Он полностью закрыт от машин. Во дворе высажены уже взрослые деревья, кустарники, цветы и злаковые травы, постелен газон. Растения размещены в грунте и дополнительно расставлены в вазонах. Во дворе предусмотрены места отдыха и прогулочные дорожки. Рядом с домом спроектирована большая детская площадка для детей разных возрастов с лестницами, горками и качелями, установлены уличные тренажёры для воркаута.