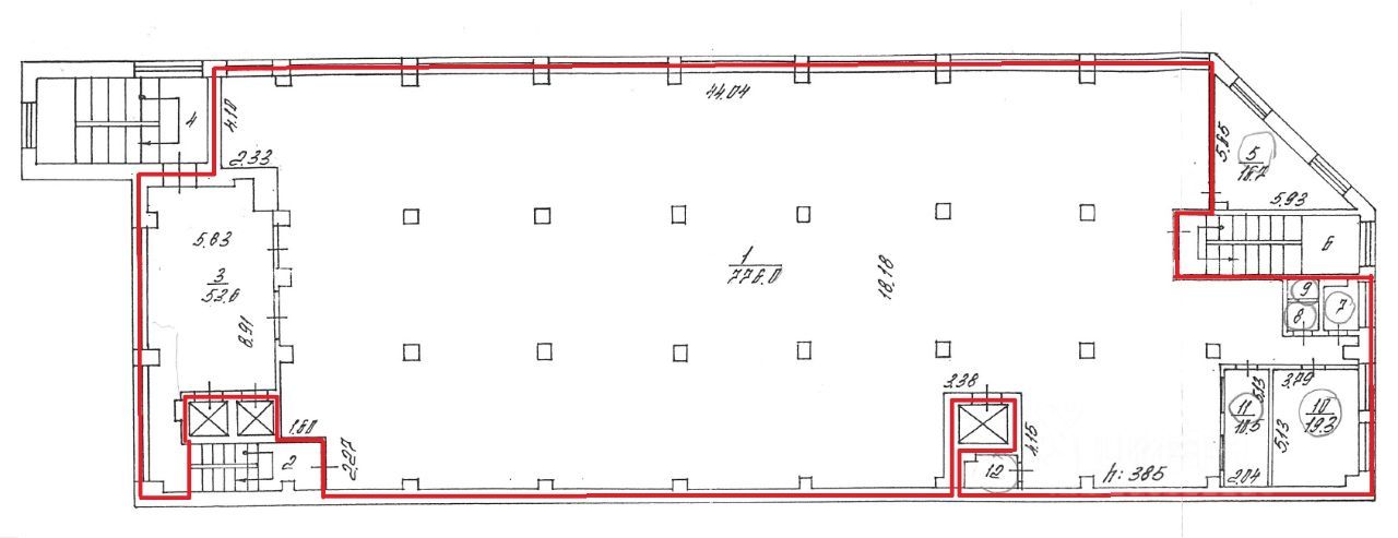
СОБСТВЕННИК!!! Помещение общей площадью 869 кв.м. на 3 этаже Торгового центра Лайнер. Высота потолков 3,8 м.
Торговый центр расположен на пересечении улиц Аэрофлотская - Индустриальная, на единственной дороге, ведущей в аэропорт г. Сургут. Отличный автомобильный трафик.
Помещения в отличном состоянии. Два действующих пассажирских лифта, грузовой лифт, вентиляция приточно-вытяжная, система кондиционирования, собственная котельная, охранно-пожарная сигнализация, автоматическая система пожаротушения, круглосуточная охрана, пол - светлый керамогранит, стены белые окрашенные, потолок армстронг. Зона разгрузки и погрузки товара.



